荻窪ロウハウスは、JR中央・総武線 / 東京メトロ丸の内線「荻窪」駅から徒歩15分の立地です。
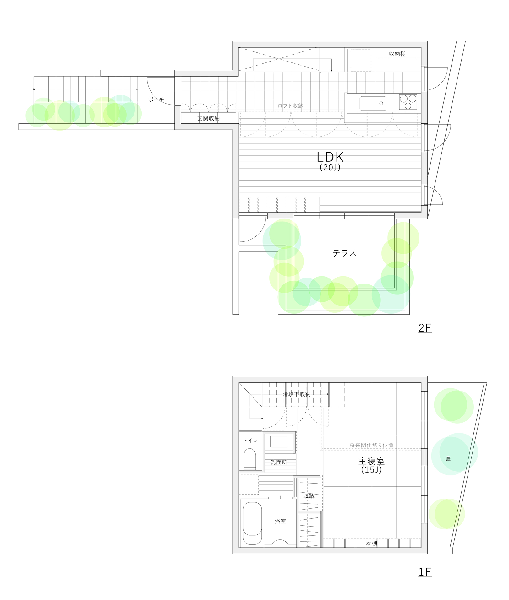
B住戸は、緑化された南向きのテラス、天井高3mのリビング、大容量のロフト収納が特徴的な住戸です。
建物全体での緑化計画がなされており、「日本建築学会作品選集2018」にも選出されています。
- 本物件は仲介物件です。
- 内覧をご希望される方は、下記予約フォームからご登録ください。 担当者より詳しいご案内をいたします。
- モデルルームではございませんので、参考でのご見学はご遠慮下さい。
- 先着順での販売となりますので、先決の際はご了承ください。
販売内覧会
荻窪ロウハウス B 販売内覧会
日程: 11/1(土) 時間: 10:00- / 10:30- / 11:00- / 11:30- / 13:00- / 13:30- 会場: 現地(杉並区本天沼2丁目)
荻窪ロウハウス B - 住戸プラン
専有面積 75.41㎡ | 1LDK+ロフト収納 | リビングの天井高約3m、南向きの緑化テラス住戸 | 販売価格7,700万円
- ※1 1住戸のみのご紹介です。
- ※2 先着順での販売となりますので、先決の場合はご了承ください。

荻窪ロウハウス B - 住戸写真



















ご購入までの流れ
-

1. 内覧
一般的なマンションでは得られない「豊かな空間」と「居心地の良さ」をご確認ください。
-

2. 購入申込
所定の購入申込書をご提出いただきます。
申込みは先着順での受付となります。 -

3. 住宅ローン審査
住宅ローンの事前審査を受けていただきます。
源泉徴収票ほかをご用意いただきます。 -

4. ご契約
売買契約の締結、媒介契約の締結、各種支払い
-

5. 決済・お引渡し
残代金のお支払い、引渡し
物件概要
□ 荻窪ロウハウス B
| 所在地: | 杉並区本天沼2丁目 |
| 交通: | JR中央・総武線、東京メトロ丸の内線「荻窪」駅徒歩15分 |
| 敷地面積: | 474.55m2 / 143.55坪 ※実測値 |
| 土地権利: | 所有権 |
| 地目: | 宅地 |
| 地域地区等: | 第一種低層住居専用地域 |
| 建蔽率: | 50% / 60% |
| 容積率: | 100% / 150% |
| 構造規模: | 鉄筋コンクリート造 地上3階建て |
| 総戸数: | 7戸 |
| 付帯設備: | なし |
| 設計: | 奥野公章建築設計室 |
| 施工: | 株式会社TH-1 |
| 管理形態: | 一部委託 |
| 管理会社: | 株式会社グッドライフ・パートナーズ |
| 竣工: | 2015年3月(築10年) |
□販売住戸
| 専有面積: | 75.41㎡ / 22.81坪(壁芯面積) |
| バルコニー等: | ポーチ、テラス、庭など 計 36.38㎡ |
| 土地権利: | 所有権敷地権割合:10,000分の1,464 |
| プラン: | 地上1-2階メゾネット 1LDK |
| 主要設備: | エアコン、浴室換気乾燥機 |
| 販売価格: | 7,700万円 |
| 管理費: | 6,566円 / 月 |
| 修繕積立金: | 18,300 / 月 |
| その他利用料: | インターネット使用料 3,086円 / 月 |
| 現況: | 空室 |
| 引渡し: | 即入居可 |
| 取扱形態: | 媒介 株式会社アーキネット 東京都知事(6)第74483号 東京都渋谷区鉢山町13-4ヒルサイドウエストB棟2F TEL 03-5458-2430 / FAX 03-5458-5575 |
| 所属団体: | (公社)東京都宅地建物取引業協会会員 (公社)首都圏不動産公正取引協議会加盟 |
| 更新日: | |
| 次回更新日: |
販売内覧会
荻窪ロウハウス B 販売内覧会
| 日程: | 11/1(土) |
| 時間: | 10:00- / 10:30- / 11:00- / 11:30- / 13:00- / 13:30- |
| 会場: | 現地(杉並区本天沼2丁目) |
お問い合わせ
ご購入に関するお問合せは
までお願いいたします。
その他、アーキネットやコーポラティブハウスに関するお問合せは
までお願いいたします。




